Details
Queens Drive, Barnsley, S75
£325,000
(Sold Subject To Contract)
Description
Located on the desirable Queens Drive in Barnsley, this charming extended semi-detached house offers a perfect blend of modern living and family-friendly features. Spanning an impressive 979 square feet, the property boasts five spacious bedrooms, making it an ideal home for a growing family. Upon entering, you are greeted by two inviting reception rooms, providing ample space for relaxation and entertaining. The lounge features a contemporary media wall, perfect for enjoying family movie nights or hosting friends. The modern kitchen is well-equipped, ensuring that meal preparation is both enjoyable and efficient. The property includes two well-appointed bathrooms, one of which is a stylish modern bathroom, alongside an additional ground floor shower room for added convenience. This thoughtful layout ensures that busy mornings run smoothly for the whole family. Outside, the low-maintenance garden is a delightful retreat, complete with a garden room that features a pool table, making it an excellent space for entertaining guests or enjoying leisure time with family. The garden is designed to be easily manageable, allowing you to spend more time enjoying your home rather than maintaining it. For those with vehicles, the property offers parking for up to three cars, a valuable feature in this sought-after area. In summary, this modern semi-detached house on Queens Drive is a wonderful opportunity for families seeking a comfortable and stylish home in Barnsley. With its generous living space, convenient amenities, and entertaining options, it is sure to impress.
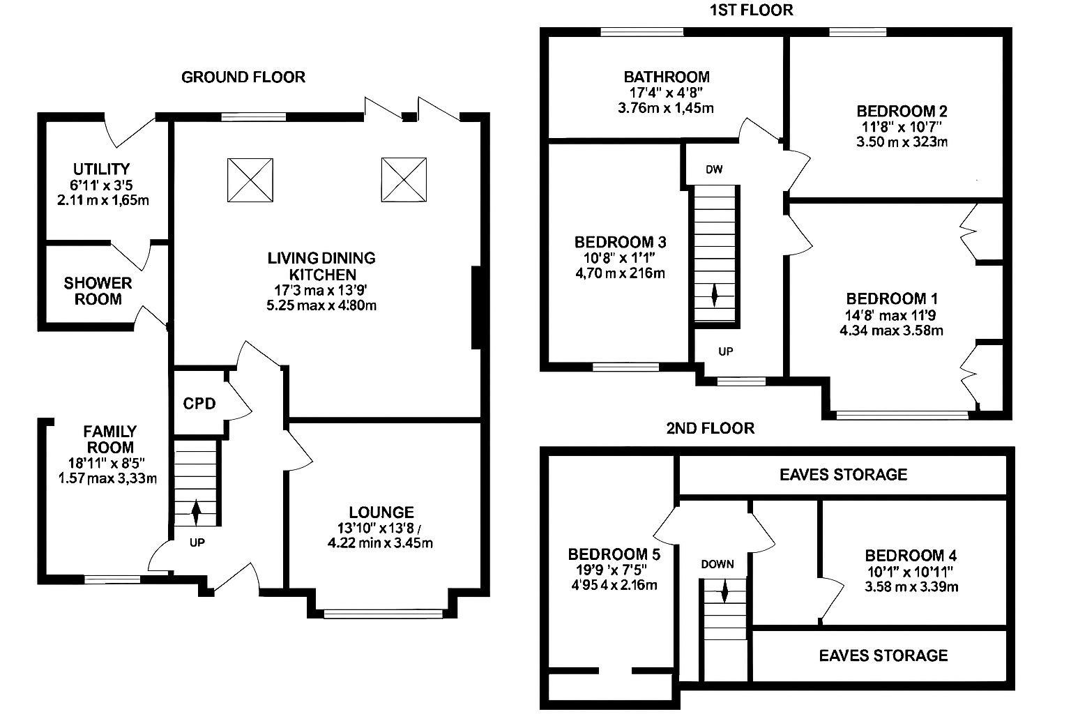
Entrance
Family Room (5.10 x 2.19 (16'8" x 7'2"))
Downstairs Shower Room
Utility Room (2.11 x 1.65 (6'11" x 5'4"))
Living Dining Kitchen Room (5.25 x 5.04 (17'2" x 16'6"))
Lounge (4.21 x 3.49 (13'9" x 11'5"))
Bedroom One (4.31 x 3.57 (14'1" x 11'8"))
Bedroom Two (3.56 x 3.26 (11'8" x 10'8"))
Bedroom Three (4.70 x 2.16 (15'5" x 7'1"))
Bedroom Four (3.71 x 3.23 (12'2" x 10'7"))
Bedroom Five (4.99 x 2.19 (16'4" x 7'2"))
Bathroom (3.76 x 1.45 (12'4" x 4'9"))
Outside
Key Features
Five Spacious Bedrooms
Well-proportioned rooms offering flexibility for family living—ideal for bedrooms, guest rooms, or hobbies.
Two Modern Bathrooms & Ground-Floor Shower
Designed for convenience, featuring high-quality fixtures and fittings for a stylish finish.
Extended Living Space
Thoughtfully extended to the rear, side, and above, providing additional room for family life and entertaining.
Versatile Family Room
Currently used as an office and workstation—perfect for remote working, study, or a playroom.
Contemporary Lounge with Media Wall
A sleek, modern space for relaxation and entertainment, complete with integrated media features.
Open-Plan Kitchen & Dining Area
A stunning family hub with a beautifully designed kitchen, fitted appliances, and Velux windows that flood the space with natural light.
Patio doors open directly onto the garden, creating a seamless indoor-outdoor flow—ideal for entertaining.
South-Facing Garden
Enjoy all-day sunshine in a low-maintenance outdoor space, perfect for family gatherings and summer relaxation.
Garden Room / Games Room
A fantastic additional space for leisure, hobbies, or entertaining guests.
Parking for Three Vehicles
Private driveway offering ample parking for multiple cars.
Prime Location
Close to schools, shops, and transport links, with excellent access to the M1 and surrounding areas—ideal for commuters and family life.
Book a viewing
If you would like to book a viewing of this property please call one of our property advisors on 01226 771333 Monday to Friday between 9am to 5pm or visit www.psbarnsley.co.uk
Thinking of selling
If you are thinking of selling your home or just curious to discover the value of your property, The Property Shop would be pleased to provide free, no obligation sales and marketing advice.
The Property Shop, 208 Barnsley Road, Cudworth
Barnsley, S72 8UJ
Viewing
Please contact us on 01226 771333 if you wish to arrange a viewing appointment for this property, or require further information.
Energy Performance Certificate
Click here to view the Energy Efficiency Rating and Environmental Impact Rating for this property.
Disclaimer
The Property Shop endeavour to maintain accurate depictions of properties in Virtual Tours, Floor Plans and descriptions, however, these are intended only as a guide and purchasers must satisfy themselves by personal inspection.
Located on the desirable Queens Drive in Barnsley, this charming extended semi-detached house offers a perfect blend of modern living and family-friendly features. Spanning an impressive 979 square feet, the property boasts five spacious bedrooms, making it an ideal home for a growing family. Upon entering, you are greeted by two inviting reception rooms, providing ample space for relaxation and entertaining. The lounge features a contemporary media wall, perfect for enjoying family movie nights or hosting friends. The modern kitchen is well-equipped, ensuring that meal preparation is both enjoyable and efficient. The property includes two well-appointed bathrooms, one of which is a stylish modern bathroom, alongside an additional ground floor shower room for added convenience. This thoughtful layout ensures that busy mornings run smoothly for the whole family. Outside, the low-maintenance garden is a delightful retreat, complete with a garden room that features a pool table, making it an excellent space for entertaining guests or enjoying leisure time with family. The garden is designed to be easily manageable, allowing you to spend more time enjoying your home rather than maintaining it. For those with vehicles, the property offers parking for up to three cars, a valuable feature in this sought-after area. In summary, this modern semi-detached house on Queens Drive is a wonderful opportunity for families seeking a comfortable and stylish home in Barnsley. With its generous living space, convenient amenities, and entertaining options, it is sure to impress.
Entrance
Family Room (5.10 x 2.19 (16'8" x 7'2"))
Downstairs Shower Room
Utility Room (2.11 x 1.65 (6'11" x 5'4"))
Living Dining Kitchen Room (5.25 x 5.04 (17'2" x 16'6"))
Lounge (4.21 x 3.49 (13'9" x 11'5"))
Bedroom One (4.31 x 3.57 (14'1" x 11'8"))
Bedroom Two (3.56 x 3.26 (11'8" x 10'8"))
Bedroom Three (4.70 x 2.16 (15'5" x 7'1"))
Bedroom Four (3.71 x 3.23 (12'2" x 10'7"))
Bedroom Five (4.99 x 2.19 (16'4" x 7'2"))
Bathroom (3.76 x 1.45 (12'4" x 4'9"))
Outside
Key Features
Five Spacious Bedrooms
Well-proportioned rooms offering flexibility for family living—ideal for bedrooms, guest rooms, or hobbies.
Two Modern Bathrooms & Ground-Floor Shower
Designed for convenience, featuring high-quality fixtures and fittings for a stylish finish.
Extended Living Space
Thoughtfully extended to the rear, side, and above, providing additional room for family life and entertaining.
Versatile Family Room
Currently used as an office and workstation—perfect for remote working, study, or a playroom.
Contemporary Lounge with Media Wall
A sleek, modern space for relaxation and entertainment, complete with integrated media features.
Open-Plan Kitchen & Dining Area
A stunning family hub with a beautifully designed kitchen, fitted appliances, and Velux windows that flood the space with natural light.
Patio doors open directly onto the garden, creating a seamless indoor-outdoor flow—ideal for entertaining.
South-Facing Garden
Enjoy all-day sunshine in a low-maintenance outdoor space, perfect for family gatherings and summer relaxation.
Garden Room / Games Room
A fantastic additional space for leisure, hobbies, or entertaining guests.
Parking for Three Vehicles
Private driveway offering ample parking for multiple cars.
Prime Location
Close to schools, shops, and transport links, with excellent access to the M1 and surrounding areas—ideal for commuters and family life.
Book a viewing
If you would like to book a viewing of this property please call one of our property advisors on 01226 771333 Monday to Friday between 9am to 5pm or visit www.psbarnsley.co.uk
Thinking of selling
If you are thinking of selling your home or just curious to discover the value of your property, The Property Shop would be pleased to provide free, no obligation sales and marketing advice.
The Property Shop, 208 Barnsley Road, Cudworth
Barnsley, S72 8UJ
Viewing
Please contact us on 01226 771333 if you wish to arrange a viewing appointment for this property, or require further information.
Energy Performance Certificate
Click here to view the Energy Efficiency Rating and Environmental Impact Rating for this property.
Disclaimer
The Property Shop endeavour to maintain accurate depictions of properties in Virtual Tours, Floor Plans and descriptions, however, these are intended only as a guide and purchasers must satisfy themselves by personal inspection.
Features
- 5 bedroom semi detached property
- Extended to the rear, side and second floor
- High quality fixtures and fittings
- Stunning open plan living kitchen with access to the south west facing garden
- Exceptional and spacious property throughout
- Perfect family home close to shops, schools and amenities
- Within walking distance of Barnsley Hospital
- Council Tax Band C
- Freehold
Share

